* Zdjęcia produktów mają charakter poglądowy i mogą nie odzwierciedlać ich rzeczywistego wyglądu. Aby uzyskać najnowsze informacje, zalecamy sprawdzenie strony internetowej producenta lub skontaktowanie się z nami za pośrednictwem poczty elektronicznej
IZZIFAST 200S SZAFA HYDRAULICZNA DO WSPÓŁPRACY Z MONOBLOKAMI PANASONIC
Kod:
D9BF-91574_PANASONIC
Opcje produktu
Dostawa
Dostawa na terenie Polski realizowana jest bezpłatnie, niezależnie od wielkości zamówienia. W przypadku dostaw na terenie Europy koszt transportu wynosi 370 zł, a szczegóły realizacji ustalane są indywidualnie.
Płatność
Oferujemy przejrzyste i elastyczne warunki płatności, dostosowane do potrzeb klientów biznesowych. Dostępne formy płatności oraz terminy realizacji ustalane są indywidualnie. Zapewniamy sprawną logistykę, bezpieczne pakowanie oraz terminową dostawę towarów, co pozwala na ciągłość realizacji projektów budowlanych i instalacyjnych.
Gwarancja
Oferujemy pełną gwarancję na produkty zakupione przez klientów biznesowych, zgodnie z obowiązującymi przepisami i warunkami producenta. Gwarancja obejmuje wady materiałowe oraz produkcyjne i zapewnia naprawę, wymianę lub inne rozwiązania ustalone w ramach zgłoszenia gwarancyjnego. Klienci mogą zgłaszać roszczenia gwarancyjne poprzez kontakt z naszym działem obsługi, co pozwala na szybkie i profesjonalne rozpatrzenie sprawy.
IZZIFAST 200S SZAFA HYDRAULICZNA DO WSPÓŁPRACY Z MONOBLOKAMI PANASONIC
IZZIFAST – KOMPLETNE SZAFY HYDRAULICZNE – PRZEGLAD TYPOSZEREGU
CAŁA KOTŁOWNIA W JEDNYM URZĄDZENIU
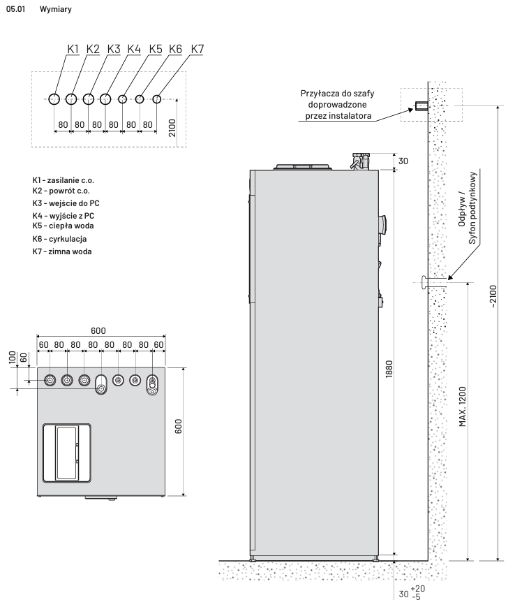
Szafy hydrauliczne iZZiFAST współpracujące z pompami ciepła powietrze-woda typu monoblok to urządzenia zawierające w swojej kompaktowej obudowie o powierzchni 0,4 m² wszystkie niezbędne elementy standardowej kotłowni wraz z zasobnikiem ciepła oraz armaturą hydrauliczną i sterującą niezbędną do prawidłowego i bezpiecznego funkcjonowania instalacji centralnego ogrzewania (CO) oraz ciepłej wody (CWU) w budynku.
Do produkcji szafy hydraulicznej iZZiFAST użyte zostały najwyższej jakości materiały, a komponenty dostarczane są przez renomowanych producentów. Urządzenie ma również niską wagę oraz zajmuje niewiele miejsca – 60 x 60 cm. Dzięki autonomicznemu systemowi UPS braki zasilania nie stanowią już zagrożenia zamarznięcia układu, który podtrzymuje dodatnią temperaturę w jednostce zewnętrznej nawet do 48h. Zastosowanie filtra zmiękczającego wodę kotłową zapewnia ochronę przed szkodliwym działaniem osadzania się kamienia w instalacji grzewczej, co znacznie podnosi jej sprawność.
Korzyści dla użytkownika:
■ estetyczny wygląd i nowoczesny design;
■ kompaktowa budowa;
■ oszczędność powierzchni użytkowej – brak konieczności tworzenia klasycznej kotłowni;
■ kompatybilność modułów iZZiFAST z całym typoszeregiem pomp ciepła monoblok danego producenta;
■ gwarancja jakości i trwałości produktu ze względu na zastosowanie materiałów najwyższej klasy (stal nierdzewna 316L);
■ niższe koszty inwestycyjne w porównaniu do układów rozdzielnych;
■ bezobsługowa praca;
■ zaawansowane możliwości sterowania, również przez Wi-Fi;
Korzyści dla instalatora:
■ łatwy do wykonania montaż przez każdego wykwalifikowanego hydraulika;
■ brak konieczności posiadania uprawnień f-gazowych;
■ ograniczenie czasu kompleksowego montażu pompy ciepła do zaledwie kilku godzin;
■ brak konieczności stosowania roztworów płynów niezamarzających jako czynnika w obiegu grzewczym;
■ kompleksowe wyposażenie hydrauliczne modułu iZZiFAST;
■ dodatkowa skrzynka przyłączeniowa – możliwość podłączenia przewodów zasilających i komunikacyjnych bez ingerencji w automatykę zestawu sterującego.
PARAMETRY TECHNICZNE:
Przykładowe schematyhydrauliczne:
